Descriptif des communs :
- 1 x porte extérieure métallique avec :
- vidéophone,
- code,
- badge,
- 1 x porte intérieure « clarite » avec :
- vidéophone,
- code,
- badge,
- 1 x ascenseur design,
-
- desservant le SS et les 4 étages,
- pouvant accueillir l’espace nécessaire pour un vélo électrique,
-
- carrelage au sol 120 x 120 rectifié
- mur en faïence 1 x pièce toute hauteur,
- éclairage led design, au mur & plafond,
- 1 x casier sécurisé dans le hall d’entrée,
- pour le dépôt des courses,
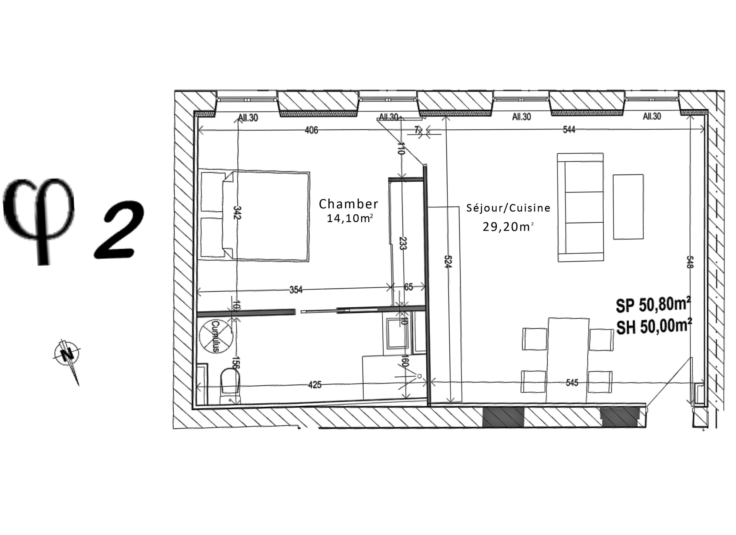
Descriptif appartement :
- Classe énergétique (DPE) : A+
- Superficie +/- 47 m²,
- Chauffage
- par climatisation gainée & intégrée au plafond,
- chaud/froid.
- 1 x stationnement auto,
- dans un parking sécurisé,
- Internet et télévision : par fibre optique,
- 1 x porte blindée et « bois massif »,
- éclairage LED périphérique intégré,
- 1 x vidéophone,
- 1 x coffre fort emmuré,
- 4 x volets bois « électriques » coté rue,
- 1 x salon/séjour
- avec éclairage led moderne et design,
- différentes zones temporisées et variables,
- carrelage au sol 90 x 90 rectifié,
- avec éclairage led moderne et design,
- 1 x chambres de +/- 14 m²,
- carrelage imitation bois,
- fibre + téléphone,
- 1 x dressings entièrement équipés et éclairés par led,
- 1 x SDB « très haut de gamme »,
- éclairage led design au plafond et aux murs,
- 1 x évier en faïence, fait par un marbrier,
- mobilier de rangement en placage de » bois de noyer »,
- robinetterie, commande de sanitaire, commande de douche, accessoires + interrupteur, de marque GESSI modèle « GOCCIA »,
- 1 x douche à l’italienne,
- ciel de pluie,
- commandes de douches intégrées,
- banc intégré,
- niche LED intégré,
- rideau de douche toute hauteur,
- Miroir « très haut de gamme » à « profondeur variable »,
- anti-buée
- sèche-serviette invisible avec thermostat sur écran,
- carrelage sol 90 x 90 rectifié,
- faïence murale avec carreau unique « toute hauteur »,
- 1 x WC suspendus,
- 1 x cuisine « non équipée »,
- 1 x cave en sous sol,
- entièrement peinte du sol au plafond,
- équipé de prise électrique,
- 1 x espace « poubelle communs » 100 % carrelé du sol au plafond.
Équipements
- Double sécurité d’accès par vidéo
- Portes blindées
- Ascenseur
- Climatisation
- Parkings
- Caves
Plans d’étage
